店舗の内装の設計・デザイン・施工。賃貸・中古住宅・マンションのリノベーションや高齢者向け介護住宅へリフォームならおまかせ。
30.【住宅】リノベーション
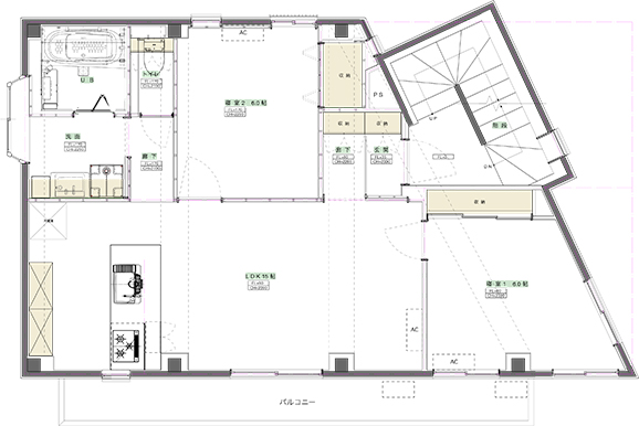
設計コンセプト
縦長のLDKでアイランドキッチン+背面収納を採用し、スッキリさせました。
アーム式壁付TVは近年のリノベーションでは毎回採用していておすすめです。
内装は今風のカジュアル、各メーカーのプリント技術向上でこの位シンプルでも充分かっこいいです。
施工写真
賃貸・中古住宅リフォーム・店舗デザインの株式会社クイックベンリー
HOME
会社概要
施工事例
ブログ
求人情報
株式会社クイックベンリー
〒216-0044
川崎市宮前区西野川3-13-39
TEL:044-754-7882
FAX:044-572-6476
アーム式壁付TVは近年のリノベーションでは毎回採用していておすすめです。
内装は今風のカジュアル、各メーカーのプリント技術向上でこの位シンプルでも充分かっこいいです。